
聯系我們
INA XU080264

- 型號:
- XU080264
- 品牌:
- INA
- 系列:
- XU
- 內徑:
- 215.9 mm
- 外徑:
- 311 mm
- 厚度:
- 25.4 mm
- 起訂量:
- ≥ 1套
- 物流:
- 全國配送 
- 電話:
 
       恩梯必專業銷售INA XU080264,能為客戶提供各種技術服務,軸承選型及型號替代等解決方案,需要XU080264最新規格、圖紙、報價等資料可聯系我司銷售部!
- 重量
- m
- 6900
- g
- 質量
 
- 徑向載荷
- Fr per
- 21000
- N
- 克服摩擦的最大許用徑向載荷
 
- 基本額定載荷
- Ca
- 85000
- N
- 基本額定動載荷,軸向
 
- C0a
- 117000
- N
- 基本額定靜載荷,軸向
 
- Cr
- 54000
- N
- 基本額定動載荷,徑向
 
- C0r
- 57000
- N
- 基本額定靜載荷,徑向
 
- 說明
- 0 - 0.02
- 軸承游隙:預載
 
- 帶再潤滑結構
 
- 兩側唇密封
 
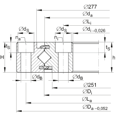
- 尺寸
- di
- 215.9
- mm
 
- Da
- 311
- mm
 
- Di
- 264.6
- mm
 
- da
- 263.4
- mm
 
- dB
- 8.7
- mm
 
- dS
- 13.7
- mm
 
- H
- 25.4
- mm
 
- h
- 25.4
- mm
 
- La
- 295.3
- mm
 
- Li
- 231.8
- mm
 
- na
- 12
- 外圈固定孔的數量
 
- ni
- 12
- 內圈固定孔的數量
 
- tS
- 8.6
- mm
 
FAG軸承型號搜索
FAG-INA軸承產品中心
 
	產品中心
產品搜索
類別目錄
四川恩梯必有限公司 版權所有


